Verkauft: Kapitalanlage! 2-Raum-Wohnung in zukunftsorientierter Wirtschaftsregion
139.000 EUR | Eigentumswohnung | ca. 54m² | 2 ZimmerObjektbeschreibung:
Diese 2-Raum-Wohnung befindet sich im Dachgeschoß eines 6-Familienhauses, das im Jahre 1953 errichtet wurde. Im Rahmen der Revitalisierungsmaßnahme „Wohnpark unter dem Wasserturm“ erfolgte 2011 die Generalsanierung. Das Wohnquartier mit insgesamt elf 6-Familienhäusern ist durch eine eigene Anliegerstraße erschlossen. Der vorhandene Baumbestand, die großzügig angelegten Grünflächen sowie über die Anlage verteilten Tisch-Sitzgruppen sorgen für einen besonderen Charme im gesamten Quartier und vermitteln ein angenehmes Wohngefühl.
Die Dachgeschoßwohnung liegt in der 3.Etage des 6-Familienhauses und ist über das saubere und gepflegte Treppenhaus zugänglich. Für Sauberkeit und Ordnung sorgt übrigens ein Hausmeisterservice.
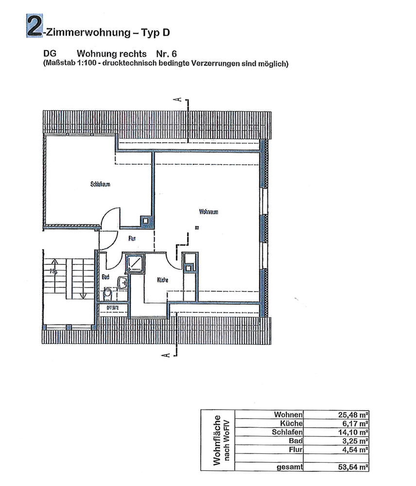
Die Eigentumswohnung verfügt über einen gut aufgeteilten Grundriss und erstreckt sich über eine Wohnfläche von ca. 53,54 m². Ausgestattet mit hellem Schlafzimmer, einem modernen Tageslichtbad, separater Küche und großem Wohn-/Essbereich bietet die sehr gepflegte 2-Raum-Wohnung viel Potenzial für individuelle Nutzungs- und Gestaltungswünsche.
Abgerundet wird dieses Angebot durch ein Kellerabteil im Untergeschoß sowie den gemeinschaftlich genutzten Waschraum. Der zur Wohnung gehörende Außenstellplatz liegt idealer-weise unmittelbar neben dem Zugang zum Haus.
Mit dieser Wohnung können Sie ein Rundum-Sorglos-Paket erwerben, aktuell übernimmt die Eigentümerverwaltung auch die Mietverwaltung.
Die Wohnung ist aktuell seit dem 01.12.2019 vermietet (Indexmietvertrag):
Kaltmiete: 400 €
Nebenkosten: 174 €
Warmmiete: 574 €
Hausgeld: 239 €
Eigentumswohnung:
Miteigentumsanteile: 72,20/1000
Grundstücksgröße: 1.130m²
Außenstellplatz:
Miteigentumsanteile: 1/35
Grundstücksgröße: 1.824m²
Ausstattung
– Laminatböden im Wohn- und Schlafbereich, Rauhfasertapete
– Fliesenboden in Küche
– Bad mit Dusche und WC, türhoch gefliest
– Kunststoffisolierglasfenster (Schallschutzklasse II, Wärmeschutz Uw = 1,3 W/m²K)
– Kunststoffrolläden
– Kellerabteil und Waschküche im UG
– Stellplatz
Lage
Das Wohnquartier, realisiert in aufgelockerter Bebauung, bietet, naturnah und gleichzeitig nahe dem Stadtzentrum (ca. 1,5 km) gelegen, ideale Lagebedingungen. Supermarkt, Bäcker, Friseur, Restaurants, Arztpraxen, Apotheke sowie sonstige Einrichtungen des täglichen Bedarfs sind fußläufig erreichbar. Mit Bushaltestelle der Stadtbahnlinie direkt vor dem Haus, Entfernung zum Bahnhof ca. 1 km und 4 Fahrminuten mit dem Auto zur B492 sowie 5 Fahrminuten zur nahegelegenen A7 präsentiert sich der Standort auch verkehrstechnisch als äußerst attraktiv und ist somit auch eine interessante Wohnlage für berufstätige Pendler oder Studierende an der ca. 11 km entfernten DHBW Heidenheim bzw. Mitarbeiter der in unmittelbarer Nähe zur Wohnung liegenden Unternehmen (z.B. Steiff, BSH Hausgeräte GmbH).
Giengen an der Brenz als große Kreisstadt mit ca. 20.000 Einwohnern gilt als bedeutender Industrie- und Gewerbestandort, geprägt durch Traditionsunternehmen, Weltmarktführern, mittelständische Unternehmen und Handwerksbetriebe. Die strategisch exzellente Lage direkt an der Autobahn A7 mit Anbindung an die A8 in Kombination mit größeren Gewerbegebieten und Industrieparks macht Giengen als Wirtschaftsstandort sehr attraktiv. Vor allem der neue Giengener Industriepark A7 wird zusätzlich weitere Arbeitsplätze und damit Wohnraumbedarf schaffen.
Innovation und Attraktivität zeigen sich vor allem in den bundesweiten und regionalen Auszeichnungen zur Kommune des Jahres beim „Großen Preis des Deutschen Mittelstandes 2019“, als „Attraktiver Wirtschaftsstandort“ durch die IHK Ostwürttemberg/Handwerkskammer Ulm 2019 sowie als Leistungsträger mit dem „Innovationspreis 2020“ der Wirtschaftsförderungsgesell-schaft Region Ostwürttemberg (WIRO).
Vieles spricht für eine Investition in Giengen. Die positive Bevölkerungsentwicklung, die hohe Wirtschaftskraft sowie die sehr gute Infrastruktur bei hervorragenden Standortbedingungen für die Industrie lassen auch für die Zukunft auf eine günstige Entwicklung des Immobilienmarktes schließen.
| Angebots-ID: | 37032 |
| Verfügbar ab: | sofort |
| Kaufpreis: | 139.000 EUR |
| Hauskosten: | 239 EUR |
| Miete: | 400 EUR |
| Nebenkosten: | 174 EUR |
| Gesamtmiete: | 574 EUR |
| Provision für Käufer: | 2,38% inkl. MwSt. |
| Provision für Verkäufer: | 2,38% inkl. MwSt. |
| Zimmer: | 2 |
| Schlafzimmer: | 1 |
| Badezimmer: | 1 |
| Kellerräume: | 1 |
| Wohnfläche: | ca. 54 m² |
| Grundstücksfläche: | ca. 1.130 m² |
| Etage: | 3 |
| Etagen: | 3 |
| Baujahr: | 1953 |
| Letzte Renovierung: | 2011 |
| Objektzustand: | vollständig renoviert |
| Heizungsart: | Zentralheizung |
| Befeuerungsart: | Gas |
| Wert des Endenergiebedarfs: | 96,6 kWh/(m2*a) |
| Art des Energieausweises: | Verbrauchsausweis |
| Energieeffizienzklasse: | C |
| Baujahr lt. Energieausweis: | 2011 |
89537, Giengen an der Brenz
Deutschland






