Vielseitig nutzbare Gewerbefläche für Büro, Dienstleistung, Lager und Selfstorage
1500 EUR | | 260 m² |Diese gepflegte und funktional strukturierte Gewerbeimmobilie bietet ideale Voraussetzungen für eine Vielzahl an Nutzungskonzepten. Aufgrund der Lage in einem Mischgebiet mit Wohnbebauung ist keine Lärmintensive Nutzung gewünscht. Die Einheit eignet sich insbesondere für Büro- und Dienstleistungsnutzungen, Showroom- und Ausstellungsflächen, Versandhandel, Lagerhaltung, Selfstorage-Konzepte sowie für kombinierte Betriebsformen mit Verkaufs-, Ausstellungs- und Lageranteil inklusive Kundenempfang.
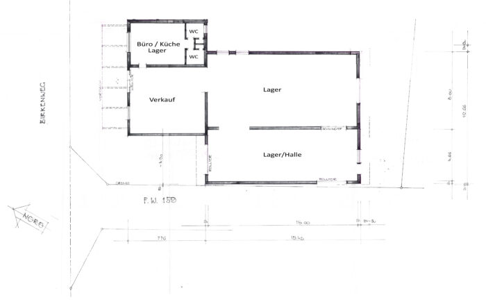
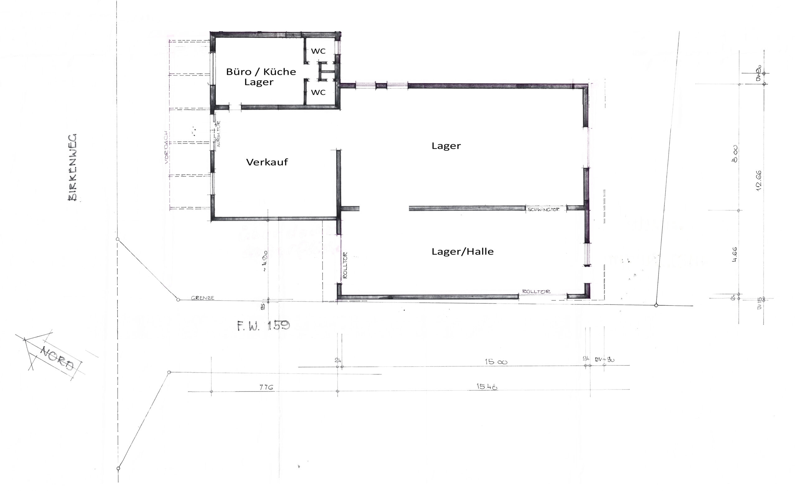
Der vordere Bereich der Immobilie präsentiert sich als großzügiger Laden- bzw. Verkaufsraum, der durch seine offene Gestaltung vielseitig nutzbar ist und sich hervorragend für Präsentation, Beratung, Kundenempfang oder die Einrichtung von Arbeitsplätzen eignet. Der vorhandene Estrichboden unterstreicht den funktionalen Charakter der Fläche und schafft eine solide Grundlage für unterschiedliche gewerbliche Nutzungskonzepte.
Ergänzt wird das Flächenangebot durch einen separaten Büro- bzw. Nebenraum mit integrierter Kaffeeküche. Dieser Bereich ist mit pflegeleichten Fliesen ausgestattet und eignet sich ideal für administrative Tätigkeiten, als Aufenthaltsraum oder als ergänzende Servicefläche.
Besonders hervorzuheben ist der Lagerbereich, der sich in zwei voneinander getrennte Hallenflächen gliedert und damit flexible Nutzungs- und Organisationsmöglichkeiten eröffnet. Der größere Hallenbereich ist beheizbar und bietet damit einen zusätzlichen Ausstattungsmehrwert für nutzungsabhängige Anforderungen. Für eine wirtschaftlich optimierte Beheizung dieses Hallenteils bietet sich der Einbau einer trennenden Zwischentüre zwischen den beiden Hallenbereichen an.
Die gesamte Flächenstruktur unterstützt effiziente und klar gegliederte Betriebsabläufe und ist damit insbesondere für Unternehmen attraktiv, die Kundenbereich, Büro und Lager in einer zusammenhängenden Einheit abbilden möchten.
Ein weiterer Pluspunkt ist die elektrische Eingangstüre, die einen komfortablen Zugang gewährleistet. Für eine reibungslose Andienung und Warenlogistik stehen zudem zwei Rolltore mit jeweils ca. 2,80 m Breite und 2,80 m Höhe zur Verfügung. Diese ermöglichen eine unkomplizierte Be- und Entladung und unterstützen einen praxisgerechten Betriebsablauf.
Zwei WC-Einheiten runden das funktionale Raumangebot ab. Darüber hinaus befinden sich vier zusätzliche Stellplätze direkt vor dem Gebäude, die sowohl Mitarbeitenden als auch Kunden und Lieferverkehren einen spürbaren Mehrwert bieten.
| Angebots-ID: | 39731 |
| Verfügbar ab: | 01.06.2026 |
| Miete: | 1500 EUR |
| Nebenkosten: | 450 EUR |
| Gesamtmiete: | 1950 EUR |
| Kaution: | 4500 |
| Provision für Mieter: | 2,38 Nettokaltmieten inkl. MwSt. |
| Nutzfläche: | 260 m² |
| Gesamtfläche: | 260 m² |
| Baujahr: | 1978 |
71717 Beilstein
Deutschland













